RGuP Logo

Rother, Gänß und Partner

Architektin und Ingenieure GmbB

Hopfen

alle unter einem Dach

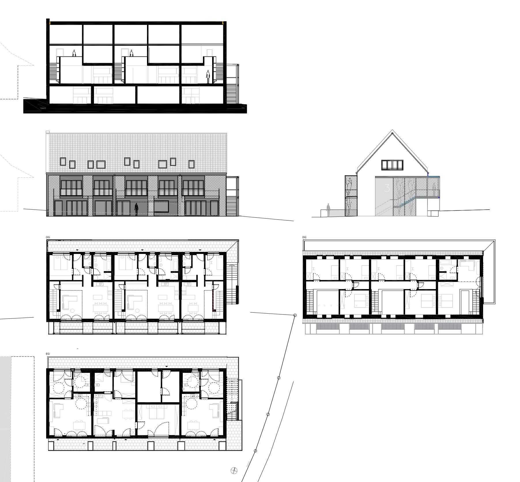
Im ländlich geprägten Raum Mittelschwabens entstand auf dem Grundstück einer ehemaligen Hofstelle ein Mehrfamilienhaus mit sechs Wohneinheiten. Der Neubau wurde als symmetrischer, dreigeschossiger Baukörper mit Satteldach konzipiert und fügt sich in Maßstäblichkeit und Typologie selbstverständlich in den dörflichen Kontext ein.

Das Projekt trägt den Namen „Hopfen“, der sich aus dem unmittelbaren Bezug zur Nutzung und Gestaltung des Ortes ableitet.

Ziel des Projekts war die Schaffung von dauerhaft erschwinglichem Wohnraum im ländlichen Raum für unterschiedliche Nutzergruppen. Unter einem Dach sollten sowohl kompakte, altersgerechte Wohnungen für alleinlebende Seniorinnen und Senioren wie auch größere Wohneinheiten für kinderreiche Familien realisiert werden.

Der Projektname findet seine räumliche Entsprechung in der Fassadengestaltung: Entlang ausgewählter Fassadenbereiche wachsen Hopfenpflanzen, welche das Gebäude im Jahresverlauf verändern, gliedern und in den landschaftlichen Kontext einbinden. Ergänzend dazu wird in der bestehenden Garage auf dem Grundstück Bier gebraut. Eine ortstypische, gemeinschaftsstiftende Nutzung, die dem Projekt eine zusätzliche identitätsstiftende Ebene verleiht und den Namen „Hopfen“ programmatisch verankert.

Die altersgerechten Wohnungen sind im Erdgeschoss angeordnet und jeweils über einen eigenen, barrierearmen Wohnungszugang erschlossen. Jedem Zugang ist ein privater Gartenbereich vorgelagert, der die Wohnung in den Außenraum erweitert. Die Grundrisse sind funktional organisiert, auf das Wesentliche reduziert und konsequent auf die Anforderungen des Wohnens im Alter ausgerichtet.

Die Familienwohnungen werden über eine außenliegende Treppe mit anschließendem Laubengang erschlossen. Sie erstrecken sich jeweils über zwei Geschosse und verfügen durch ihren direkten Zugang über eine eigenständige Adresse. In ihrer räumlichen Organisation bieten sie die Qualitäten eines kleinen Reihenhauses. Unterschiedliche Wohnungsgrößen ermöglichen eine flexible Belegung. Die Grundrisse sind modern und effizient geschnitten und bieten durch eine durchdachte Raumorganisation großzügige Stauraummöglichkeiten sowie Spielraum zur individuellen Aneignung. In den Kinderzimmern schafft eine teilweise eingezogene Holzzwischendecke mit integrierter Stauraumgalerie zusätzliche Nutzfläche und verleiht den Räumen eine besondere Großzügigkeit.