UMBAU
Garten öffne dich
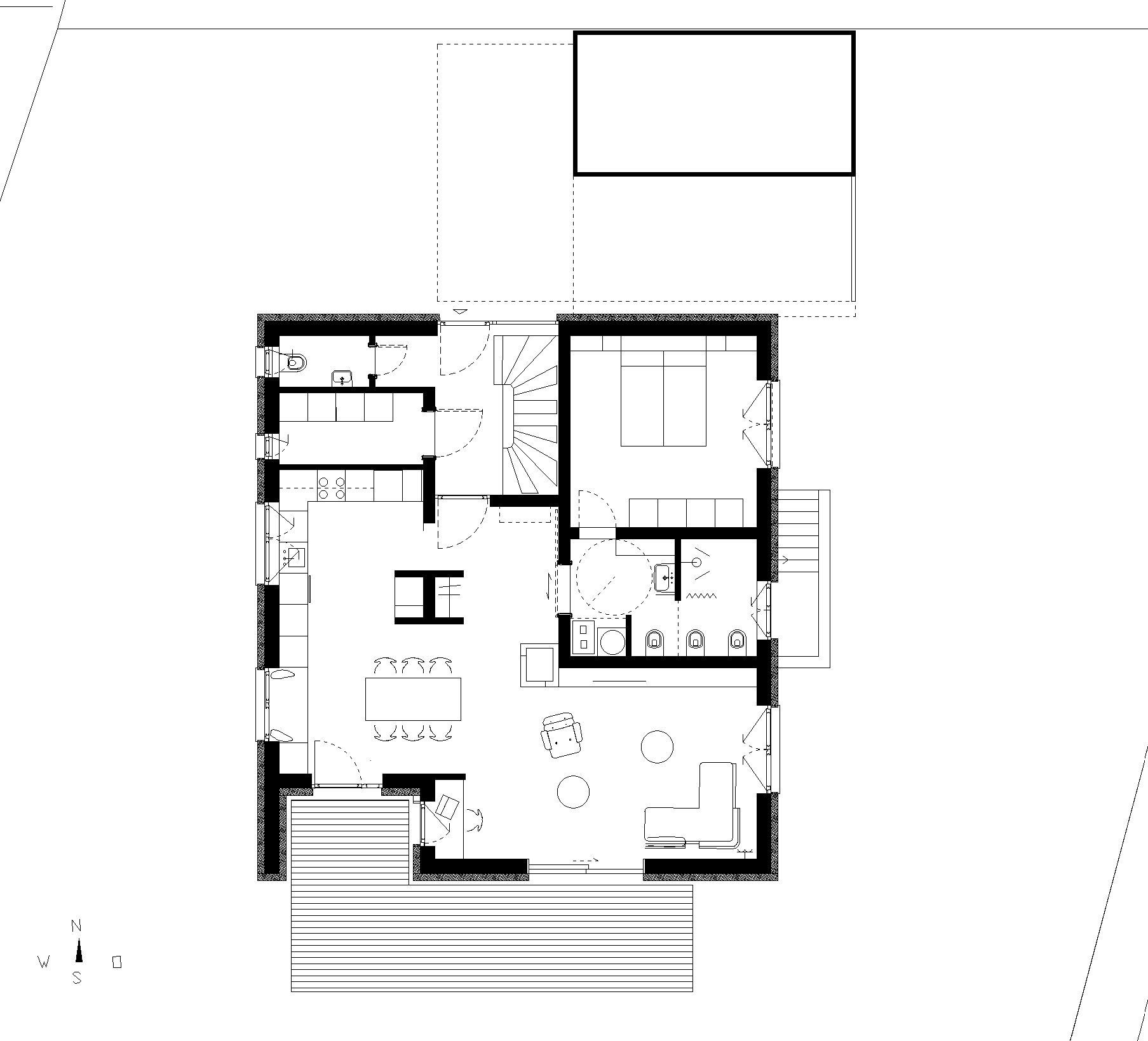
Bei Schwäbisch Gmünd sollte das bestehende Einfamilienhaus für ein sich vor dem Ruhestand befindenden Ehepaar seniorengerecht umgeplant werden. Die in den 1970er Jahren typische Raumstruktur wurde geöffnet und an die sich wandelnden Bedürfnisse angepasst. Die Trennung von Wohn-, Koch- und Essbereich wurde weitestgehend aufgehoben. Der Eingang sowie das Bad barrierefrei gestaltet und die thermische Hülle samt Fenstern energetisch ertüchtigt.
Durch gezielte und auf das Nötigste beschränkte Eingriffe in die Bausubstanz blieb der Aufwand überschaubar ohne dass auf ein modernes und großzügiges Raumgefül verzichtet werden musste.